753 E 15th Street, North Vancouver - Ralph Maglieri

753 E 15th Street, North Vancouver

NORTH VANCOUVER, Boulevard

$3,190,000
ASK ABOUT THIS PROPERTY

Property Description

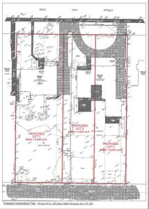
A rarely available offering located on one of Grand Boulevard's most desirable streets! A level, potentially sub-dividable 12,000 square foot South facing lot, with full Mountain views and lane access. Included in this exclusive offering could be two fully subdivided 36 x 167 ft. lots with surveys, potential to build approximately 2 custom built 4,400 square foot homes with secondary suites. The current 1,800 square foot, one level, post and beam home on the property is built and designed by accomplished architect Arnold E. King. Fully renovated with 3 Beds + Den, and 2 baths, this location is walking distance to parks, trails, schools and shops.

  • Address: 753 E 15th Street, North Vancouver
  • Postal Code: V7L 2S5
  • MLS® Number: R2233118
  • Listed By: RE/MAX Crest Realty
  • Frontage Size: 62
  • Depth Size: 167
  • Tax: $6,001
  • Tax Year: 2017